Skip to content
Skip to Main menu
Home
Sitemap
Main menu
CEO Greeting
History
Location
Automation
Environmental Safety
Cleaning Equipment
Consumable Spare Parts
Incidental Facility
Energy-Saving Business
Quality Environmetal Policy
Quality Management System
Main measuring equipment
Certifications
News / Notice
Quotation Inquiry
Product Inquiry
Automation
Environmental Safety
Cleaning Equipment
Consumable Spare Parts
Incidental Facility
Energy-Saving Business
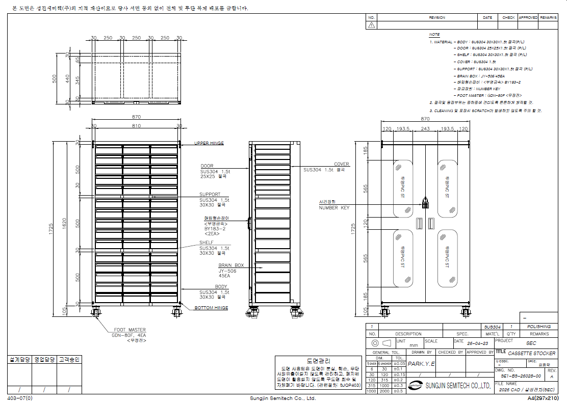
Incidental Facility
> Product > Incidental Facility
L-POSITION TRAY 대차
SS41 + SUS304
LCD GLASS 반송용 TRAY 교체작업
협착 방지COVER , END STOPPER
이전페이지
1
2
3
4
5
6
7
8
9
10
다음페이지
마지막페이지